Bm19397
|
新成増ハイツ
|
1,950万円 和光市白子3丁目 |
2LDK 成増駅 |
− 15分 |
66.24m2 |
5/8 鉄骨鉄筋コンクリート造 |
S50/06 令和08年03月上旬 |
|
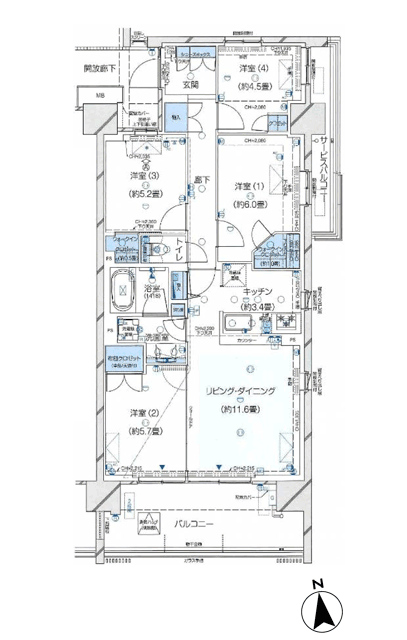
新成増ハイツ 和光市白子3丁目の中古マンション ◆8階建ての5階部分 南東・南西の角部屋 南東向きバルコニーなので陽当り良好。 ◆2LDKの間取りで新婚家庭向きでしょうか。洋室が2部屋です。 ◆LDKが真ん中にある間取りです。家族が集いやすいですね。 ◆浴室・洗面室に窓があります。風通りよくカビにくいです。 ◆住所は和光市ですが、最寄駅は板橋区の東武東上線「成増」駅になります。 【当社なら仲介手数料が20%OFF!】 |
Bm19391
|
レクセル朝霞
|
1,980万円 朝霞市岡3丁目 |
3LDK 朝霞駅 |
− 19分 |
69.77m2 |
8/9 鉄骨鉄筋コンクリート造 |
H06/02 相談 |
|
レクセル朝霞 朝霞市岡3丁目の中古マンション ◆9階建ての8階部分 西向き 日当たり・通風・眺望良好です。 ◆キッチンは独立しており、2WAY仕様。家事がスムーズに進みます。 ◆3LDKの間取り 1部屋は和室です。 ◆和室には天袋付きの押入れがあるのでたくさん収納できます。 ◆主寝室にはウォークインクローゼットもありますよ。 ◆向山児童遊園地が隣接しています。城山公園も近く、緑豊かな住環境! ◆立派な外観のマンションです。 【当社なら仲介手数料が20%OFF!】 |
Bm19423
|
メゾン和光台
|
2,580万円 和光市白子2丁目 |
3LDK 地下鉄成増駅 |
− 14分 |
60.59m2 |
5/11 鉄骨鉄筋コンクリート造 |
S53/05 令和07年11月中旬 |
|
メゾン和光台 和光市白子2丁目の中古マンション ◆11階建ての5階部分ですが、上階にはお部屋がありません。上階の足音などが気にならない住戸! ◆南東向きバルコニー 日当たり・通風・眺望良好です。 ◆リフォーム中なので完了後キレイな状態でお住まいいただけます。(2025年11月中旬完了予定) ◆対面式のキッチン リビングダイニングを見ながらお料理できますね。 ◆ヤオコー和光丸山台店が近くにできたのでとても便利になりました。 ◆総戸数236戸の大規模マンション!管理体制良好です。 ◆笹目通り(環八)沿いに立地します。現地にてご確認ください。 ◆住所は和光市ですが、最寄駅は板橋区の「地下鉄成増」駅になります。 ◆便利!3路線(有楽町線・副都心線・東武東上線)、2駅利用可能です。 【当社なら仲介手数料が20%OFF!】 |
Bm19403
|
ライオンズマンション徳丸
|
2,680万円 板橋区徳丸6丁目 |
3LDK 東武練馬駅 |
− 15分 |
76.51m2 |
1/5 鉄筋コンクリート造 |
S61/11 相談 |
|
ライオンズマンション徳丸 板橋区徳丸6丁目の中古マンション ◆5階建ての1階部分 南・東の角部屋 バルコニー2か所あります! ◆LDKは16.4帖!ゆったり間取りです。 ◆キッチンは独立していますが、カウンター付きなので使い勝手が良いです。 ◆東側にバルコニーと出窓が3か所あります。明るい室内です。 ◆2階部分からマンション内に入れます。 ◆トランクルームがあります。(1階、無償) ◆緑豊かな南向きの高台に立地しています!坂道です。 【当社なら仲介手数料が20%OFF!】 |
Bm19425
|
サンハイツ成増
|
2,799万円 和光市白子3丁目 |
2SLDK 成増駅 |
− 15分 |
60.5m2 |
1/3 鉄筋コンクリート造 |
H07/08 即時 |
|
サンハイツ成増 和光市白子3丁目の中古マンション ◆1階部分 南向きの住戸です。足音などを気にせずに生活できますね。 ◆リフォーム済みなのですぐにキレイな状態でお住まいいただけます。(2025年10月完了) ◆LDKは14.6帖!L字型のキッチンが使いやすそう。 ◆主寝室には窓が有りません。ご留意ください。 ◆建築基準法上2SLDKと表記しておりますが3LDKとしてお使いいただけます。 ◆低層3階建てのマンションです。 ◆エントランスへは階段とスロープがあります。ベビーカー等でも安心です。 ◆住所は和光市ですが、最寄駅は板橋区の「成増」駅になります。3路線(有楽町線・副都心線・東武東上線)利用可能です。 【当社なら仲介手数料が20%OFF!】 |
Bm19396
|
コトー朝霞中央公園
|
2,898万円 朝霞市栄町3丁目 |
3LDK 朝霞駅 |
− 12分 |
61.6m2 |
3/11 鉄骨鉄筋コンクリート造 |
S58/01 令和07年12月上旬 |
|
コトー朝霞中央公園 朝霞市栄町3丁目の中古マンション ◆3階部分 西向き 午後の日差しが入ります。 ◆リフォーム中なので完了後キレイな状態でお住まいいただけます。(2025年12月完了予定) ◆LDKは12帖 リビングはバルコニーに面し明るく過ごせそうです。 ◆対面式のキッチンなので、リビングダイニングを見ながらお料理できますね。 ◆真ん中のお部屋には窓がありません。ご留意ください ◆第八小・第四中が至近のマンション!ドラッグスギも目の前です。 ◆管理体制良好な大型マンションです。 ◆ペット飼育も可。(規約あり) 【当社なら仲介手数料が20%OFF!】 |
Bm19388
|
ライオンズマンション朝霞台
|
3,180万円 朝霞市西原2丁目 |
3LDK 朝霞台駅 |
− 4分 |
57.66m2 |
1/8 鉄筋コンクリート造 |
H07/07 令和08年03月上旬 |
|
ライオンズマンション朝霞台 朝霞市西原2丁目の中古マンション ◆1階部分 南東向き テラス・専用庭付きの住戸です。 ◆専用庭は12.3u 洗濯物がたくさん干せます。お子様の遊び場にもなりますね。 ◆1部屋は和室です。リビングとつなげて使えます。 ◆バルコニー側は線路ですので、音など現地にてご確認ください。 ◆駅近い!周辺には生活施設もそろっています。 【当社なら仲介手数料が20%OFF!】 |
Bm19400
|
初穂マンション西台
|
3,180万円 板橋区高島平1丁目 |
3LDK 西台駅 |
− 4分 |
63.18m2 |
2/8 鉄骨鉄筋コンクリート造 |
S57/02 即時 |
|
初穂マンション西台 板橋区高島平1丁目の中古マンション ◆お子様に安心!小学校が近いです。徒歩3分。 ◆2階部分 南向き 3LDKの間取り 真ん中の和室には窓がありません。 ◆LDKは12帖 対面キッチンで家族の様子を見ながらお料理できます。 ◆駅至近徒歩4分の好立地です。高島通り沿いの交差点に位置します。 ◆1階にはスギ薬局が入っています。何かと便利。 【当社なら仲介手数料が20%OFF!】 |
Bm19387
|
レーベンハイム赤塚公園参番館
|
3,240万円 板橋区四葉1丁目 |
1SLDK 下赤塚駅 |
− 15分 |
45.74m2 |
2/6 鉄筋コンクリート造 |
H10/11 即時 |
|
レーベンハイム赤塚公園参番館 板橋区四葉1丁目の中古マンション ◆2階部分 南西向き リビングと洋室がバルコニーに面します。 ◆LDKは11.2帖 細長い間取りです。 ◆リフォーム済みなのですぐにキレイな状態でお住まいいただけます。(2025年10月20日完了) ◆建築基準法上1SLDKと表記しておりますが2LDKとしてお使いいただけます。 ◆ペット飼育可能です。1住戸につき1匹までの制限があります。 ◆コンビニや公園などが近く、生活環境良好です。 【当社なら仲介手数料が20%OFF!】 |
Bm19415
|
ダイアパレスグランデ西台
|
3,998万円 板橋区高島平9丁目 |
2SLDK 西台駅 |
− 10分 |
65.89m2 |
1/7 鉄筋コンクリート造 |
H08/02 即時 |
|
ダイアパレスグランデ西台 板橋区高島平9丁目の中古マンション ◆1階部分 南向き 階下に住戸ないので足音などを気にせず生活できます。 ◆新規リフォーム中なので、完了後すぐにきれいな状態でお住まいいただけます。(2025年10月完了) ◆リビングダイニングがバルコニーに面します。 ◆建築基準法上2SLDKと表記しておりますが3LDKとしてお使いいただけます。 ◆2012年5月大規模修繕工事実施済み! ◆マンションが建ち並ぶ閑静な住宅街です。 【当社なら仲介手数料が20%OFF!】 |
Bm19418
|
パルテメゾン成増
|
4,198万円 和光市白子3丁目 |
3LDK 成増駅 |
− 12分 |
65.89m2 |
5/5 鉄筋コンクリート造 |
H10/03 即時 |
|
パルテメゾン成増 和光市白子3丁目の中古マンション ◆最上階5階部分 南東・北東の角部屋 アーチを描いた素敵な間取りです。 ◆最上階 5mの天井高!立てるロフトがあります。ゆとりの空間ですね。 ◆リフォーム済みなのですぐにキレイな状態でお住まいいただけます。(2025年9月完了) ◆対面式のキッチン!リビングダイニングを見ながらお料理できますね。 ◆ステキな外観のマンションです。 ◆住所は和光市ですが、最寄駅は板橋区の東武東上線「成増」駅になります。 【当社なら仲介手数料が20%OFF!】 |
Bm19398
|
コスモ志木
|
 4,480万円 志木市幸町1丁目 |
4LDK 志木駅 |
− 9分 |
79.83m2 |
12/13 鉄骨鉄筋コンクリート造 |
S61/07 即時 |
|
コスモ志木 志木市幸町の中古マンション ◆13階建ての12階部分 南西・北西の角部屋 なんと53.69uのルーフバルコニーがある住戸! ◆リフォーム済みなのですぐにキレイな状態でお住まいいただけます。(2025年9月完了) ◆希少な4LDKの間取り 贅沢な空間です。 ◆LDKは2面採光!明るく、気持ちよく過ごせそうです。 ◆リビングと隣の洋室はつなげてお使いいただけます。 ◆エレベーター停止階です。 ◆管理体制良好!総戸数248戸のビッグコミュニティ! 【当社なら仲介手数料が20%OFF!】 |
Bm19406
|
ヴェレーナシティ朝霞
|
4,780万円 朝霞市根岸台2丁目 |
3LDK 朝霞駅 |
− 13分 |
64.48m2 |
1/8 鉄筋コンクリート造 |
R05/01 相談 |
|
ヴェレーナシティ朝霞 朝霞市根岸台2丁目の中古マンション ◆8階建ての1階部分 南西向き オープンエアスペース・専用庭・専用駐輪場があり、一戸建てのようです。 ◆ウォークインクローゼットがあります。たくさん収納できます。 ◆対面式のキッチンなので、リビングダイニングを見ながらお料理できますね。 ◆リビングと隣り合う洋室はつなげて使用することもできます。 ◆ペットと暮らせるマンション!共有部分充実:パーティールームやライブラリーなどがあります。 ◆2023年1月築の超築浅、車寄せのある豪華なマンションです! 【当社なら仲介手数料が20%OFF!】 |
Bm19438
|
ライオンズガーデン赤塚公園
|
4,790万円 板橋区赤塚8丁目 |
3LDK 西高島平駅 |
− 15分 |
83.15m2 |
6/7 鉄筋コンクリート造 |
H06/02 令和07年11月上旬 |
|
ライオンズガーデン赤塚公園 板橋区赤塚8丁目の中古マンション ◆6階部分 南・東の角部屋 日当たり・通風・眺望良好です。 ◆リフォーム中なので完了後キレイな状態でお住まいいただけます。(2025年11月8日完了予定) ◆専有面積83.15u3LDKの間取りです。ゆとりの間取りです。 ◆LDKがバルコニーに面しており、一日中明るく過ごせます。 ◆L字型のワイドバルコニーが魅力的 キッチンからもバルコニーへ出られます。 ◆主寝室にはウォークインクローゼット たくさん収納できそうです。 ◆便利!2路線利用可能です。 【当社なら仲介手数料が20%OFF!】 |
Bm19408
|
ライオンズガーデン成増ヴィスタヒルA棟
|
5,180万円 和光市白子2丁目 |
3LDK 地下鉄成増駅 |
− 13分 |
81.6m2 |
13/17 鉄筋コンクリート造 |
H17/04 相談 |
|
ライオンズガーデン成増ヴィスタヒルA棟(エアリーコート) 和光市白子2丁目の中古マンション ◆17階建ての13階部分 南東向き 日当たり・通風・眺望良好です。 ◆リフォーム中なので完了後キレイな状態でお住まいいただけます。 ◆3部屋がバルコニーに面します。明るく開放感がある室内です。 ◆キッチンは独立しています。お料理に集中できそうですね。 ◆ウォークインクローゼットや各所に収納があり、スッキリと片付きます。 ◆リビングダイニング全面に床暖房が設置されています。寒い季節に活躍。 ◆全376戸の大規模マンションのため共用施設が充実。クリーニングや宅配便を取次してくれるフロントサービス!ミニストアもあります。 ◆ゲストルームで来客をおもてなし可能です。キッズルーム、キッチンスタジアム併設のコミュニティサロンもあります。 ◆セコムセキュリティで安心です。 ◆住所は和光市ですが、最寄駅は板橋区の「地下鉄成増」駅になります。徒歩13分。 【当社なら仲介手数料が20%OFF!】 |
Bm19395
|
シーアイハイツ和光H棟
|
5,480万円 和光市本町 |
4LDK 和光市駅 |
− 7分 |
84.99m2 |
3/15 鉄骨鉄筋コンクリート造 |
S59/03 即時 |
|
シーアイハイツ和光H棟 和光市本町の中古マンション ◆15階建ての3階部分 南・東・北の三方角部屋 明るく風通しが良い住戸です。 ◆希少な4LDKの間取りです。LDKは16帖!明るい室内です。 ◆リフォーム中なので完了後キレイな状態でお住まいいただけます。(2025年10月下旬完了予定) ◆ウォークインクローゼットがあります。スッキリ片付きそうですね。 ◆全1,616戸の大規模マンションです。 ◆市立図書館、保育園、スーパーサミット、ダイソー等敷地内にあります! ◆管理体制良好! 【当社なら仲介手数料が20%OFF!】 |