Bk19475
|
朝霞市宮戸3丁目の新築一戸建て
|
4,480万円 朝霞市宮戸3丁目 |
4LDK 志木駅 |
− 22分 |
109.79m2 94.77m2 |
2 木造 |
R08/02
 令和08年02月上旬 |
|
朝霞市宮戸3丁目の新築一戸建て 12号棟(全16棟) 【当社なら仲介手数料が20%OFF!】 ◆12号棟は、北東・北西の角地!風通り良好。 ◆角にゴミ置き場が設置されます。ご留意ください。 ◆1階LDKは16帖 5.2帖の和室もあり、客間としても使えそうです。 ◆キッチンと・浴室・洗面室が近いので、家事動線がラクラクです! ◆土地面積33坪 駐車スペース1台可能です。 ◆2階に3部屋 主寝室は8帖!収納も広くゆったりと過ごせます。 ◆南東向きの広いバルコニー 洗濯物がたくさん干せますよ。 ◆小学校までは距離があります。ご確認ください。 ◆全16棟の大型開発分譲住宅地!間取りが色々ありますのでぜひご覧ください。 ◆新河岸川が近く、田んぼや緑がまだ残る立地です。 |
Bk19310
|
朝霞市岡2丁目の新築一戸建て
|
4,490万円 朝霞市岡2丁目 |
3LDK 朝霞台駅 |
− 19分 |
110.09m2 98.53m2 |
2 木造 |
R07/11
 即時 |
|
朝霞市岡2丁目の新築一戸建て 1号棟(全10棟) 【当社なら仲介手数料が20%OFF!】 ◆1号棟は北西の角地 陽当り良好! ◆駐車スペース2台可能 駐車しやすい立地です。 ◆1階19帖のLDKと浴室洗面室。水回りが近いので家事が楽々進みます。 ◆2階への階段はダイニングの横 家族の様子がわかり安心です。 ◆2階に3部屋 6帖のお部屋にはそれぞれウォークインクローゼットがありますよ。収納豊富。 ◆L字型のワイドバルコニー 洗濯物がたくさん干せます。 ◆周辺は畑や緑の残る立地です。 ◆JR武蔵野線「北朝霞」駅も利用可能で便利。
 |
Bk19464
|
朝霞市宮戸3丁目の新築一戸建て
|
4,580万円 朝霞市宮戸3丁目 |
3SLDK 志木駅 |
− 22分 |
110.1m2 98.4m2 |
2 木造 |
R08/02
 令和08年02月上旬 |
|
朝霞市宮戸3丁目の新築一戸建て 1号棟(全16棟) 【当社なら仲介手数料が20%OFF!】 ◆1号棟は南西・北西の角地!日当たり・風通り良好。 ◆土地面積33坪超え 駐車スペース2台可能 ゆとりの敷地です。 ◆1階LDKは19.5帖!リビングとダイニングが分かれ使いやすそうです。 ◆2階に3部屋+サービスルーム サービスルームは2.2帖 収納やテレワークルームとしても使えそうです。 ◆主寝室は8.2帖ありクローゼットも広い! ◆南西向きのワイドバルコニー 洗濯物がたくさん干せます。 ◆小学校までは距離があります。ご確認ください。 ◆建築基準法上3SLDKと表記しておりますが4LDKとしてお使いいただけます。 ◆全16棟の大型開発分譲住宅地!間取りが色々ありますのでぜひご覧ください。 ◆新河岸川が近く、田んぼや緑がまだ残る立地です。 |
Bk19276
|
朝霞市岡3丁目の新築一戸建て
|
4,650万円 朝霞市岡3丁目 |
4LDK 朝霞駅 |
− 21分 |
74.89m2 110.84m2 |
3 木造 |
R07/11
 即時 |
|
朝霞市岡3丁目の新築一戸建て 【当社なら仲介手数料が20%OFF!】 ◆3階建て LDKが2階にある間取りです。 ◆LDKは17.5帖 リビングとダイニングが分かれ使いやすそう。対面キッチンです。 ◆3階に3部屋。5帖以上、収納もあります。 ◆1階のお部屋は7帖。主寝室として使えます。 ◆2階3階に広いスクエアバルコニーがあります。お洗濯物がたくさん干せますね。 ◆駅からは少し離れますがバス便もあります。 ◆小中学校もほど近い、閑静な住宅街に立地します。
 |
Bk19380
|
朝霞市根岸台8丁目の新築一戸建て
|
4,680万円 朝霞市根岸台8丁目 |
3SLDK 朝霞駅 |
− 18分 |
138.36m2 103.09m2 |
2 木造 |
R08/01
 令和08年02月上旬 |
|
朝霞市根岸台8丁目の新築一戸建て 【当社なら仲介手数料が20%OFF!】 ◆2階建ての新築一戸建て 土地面積41坪あります。 ◆1階LDKは20帖!広々間取りです。 ◆対面キッチンなので家族の様子を見ながらお料理できます。 ◆キッチンの横にパントリーあり。買い置きがたくさんできそう。 ◆キッチンの後ろに浴室洗面室 水回りが近いので家事がスムーズに進みます。 ◆玄関には人気のシューズインクローゼットがあります!ゴルフバッグやベビーカーなどが置けて便利です。 ◆2階にはウォークインクローゼット!各居室にももちろん収納あります。 ◆バルコニーが2か所 日当たり・風通り良好。 ◆建築基準法上2SLDKと表記しておりますが3LDKとしてお使いいただけます。 ◆敷地の一部に通行地役権の設定があります。 ◆小中学校へは距離があります。ご留意ください。 |
Bk19477
|
朝霞市宮戸3丁目の新築一戸建て
|
4,680万円 朝霞市宮戸3丁目 |
4LDK 志木駅 |
− 22分 |
110.25m2 95.58m2 |
2 木造 |
R08/02
 令和08年02月上旬 |
|
朝霞市宮戸3丁目の新築一戸建て 14号棟(全16棟) 【当社なら仲介手数料が20%OFF!】 ◆14号棟は、北東・北西の2面道路に面します。風通り良好。 ◆1階LDKなんど20帖!広い空間です。 ◆キッチンと・浴室・洗面室が近いので、家事動線がラクラクです! ◆人気のリビングイン階段で家族の様子がわかり安心です! ◆土地面積33坪 駐車スペース縦列で2台可能 ゆとりの敷地です。 ◆2階に4部屋 5帖以上あり使いやすい間取り。 ◆南西向きのワイドバルコニー 洗濯物がたくさん干せますよ。 ◆小学校までは距離があります。ご確認ください。 ◆全16棟の大型開発分譲住宅地!間取りが色々ありますのでぜひご覧ください。 ◆新河岸川が近く、田んぼや緑がまだ残る立地です。 |
Bk19478
|
朝霞市宮戸3丁目の新築一戸建て
|
4,680万円 朝霞市宮戸3丁目 |
4LDK 志木駅 |
− 22分 |
110.19m2 95.58m2 |
2 木造 |
R08/02
 令和08年02月上旬 |
|
朝霞市宮戸3丁目の新築一戸建て 15号棟(全16棟) 【当社なら仲介手数料が20%OFF!】 ◆15号棟は、北東・北西の2面道路に面します。風通り良好。 ◆1階LDKは16帖 4畳の和室とつなげると20帖の広い空間となります。 ◆キッチンと・浴室・洗面室が近いので、家事動線がラクラクです! ◆土地面積33坪 駐車スペースは1台です。 ◆2階に3部屋 6.55帖以上あり使いやすい間取り。 ◆南西向きの広いバルコニー 洗濯物がたくさん干せますよ。 ◆小学校までは距離があります。ご確認ください。 ◆全16棟の大型開発分譲住宅地!間取りが色々ありますのでぜひご覧ください。 ◆新河岸川が近く、田んぼや緑がまだ残る立地です。 |
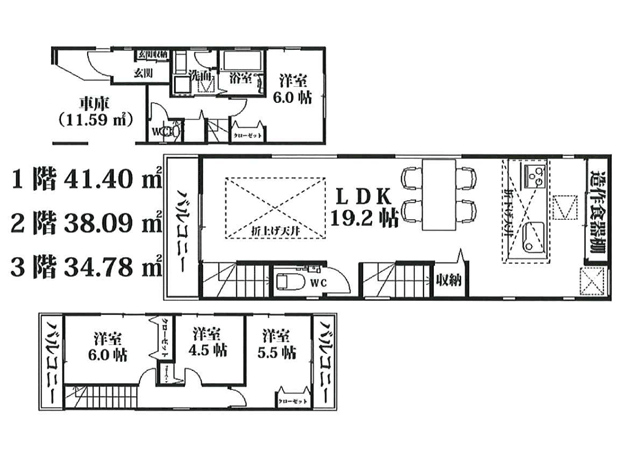
Bk19058
|
朝霞市三原5丁目の新築一戸建て
|
4,698万円 朝霞市三原5丁目 |
3SLDK 志木駅 |
− 13分 |
60.31m2 107.13m2 |
3 木造 |
R07/10
 即時 |
|
朝霞市三原5丁目の新築一戸建て 【当社なら仲介手数料が20%OFF!】 ◆3駅2路線(東武東上線・JR武蔵野線)利用できる立地に、3階建ての新築一戸建てが出ました! ◆18帖のLDKは2階です。南西向きバルコニーに面し、明るく過ごせます。 ◆対面式のキッチンなので、リビングダイニングを見ながらお料理できますね。 ◆リビングにパントリーがあります。買い置きがたくさんできますね。 ◆人気のリビングイン階段で家族の様子がわかり安心です! ◆3階にはバルコニーがあるので、明るい! ◆主寝室にはウォークインクローゼット。たっぷり収納できます。 ◆ビルトインガレージです。愛車が汚れにくいですね。 ◆閑静な住宅街に立地します。
 |
Bk18967 |
朝霞市宮戸2丁目の新築一戸建て |
4,780万円 朝霞市宮戸2丁目 |
4LDK 志木駅 |
− 15分 |
90.04m2 93.77m2 |
2 木造 |
R07/09
 即時 |
|
朝霞市宮戸2丁目の新築一戸建て 【当社なら仲介手数料が20%OFF!】 ◆2階建ての新築一戸建て 志木駅から徒歩15分!運動にもなりちょうどよい距離です。 ◆1階17帖のLDK 対面式のキッチンなので、リビングダイニングを見ながらお料理できますね。 ◆キッチンには造作食器棚があります。 ◆キッチン横に階段下収納あり。スッキリと片付きます。 ◆キッチンと浴室・洗面室が近いので、家事動線がラクラクです! ◆人気のリビングイン階段で家族の様子がわかり安心です! ◆2階に4部屋 主寝室にはウォークインクローゼットあり。 ◆公園近く、閑静な住宅街に立地します。
 |
Bk19476
|
朝霞市宮戸3丁目の新築一戸建て
|
4,780万円 朝霞市宮戸3丁目 |
3LDK 志木駅 |
− 22分 |
110.35m2 95.97m2 |
2 木造 |
R08/02
 令和08年02月上旬 |
|
朝霞市宮戸3丁目の新築一戸建て 13号棟(全16棟) 【当社なら仲介手数料が20%OFF!】 ◆13号棟は、北東・北西・南西の三方角地!駐車しやすいです。 ◆玄関には人気のシューズインクローゼットがあります!ゴルフバッグやベビーカーなどが置けて便利です。 ◆1階LDKはなんと19帖!ゆったりと過ごせます。 ◆キッチンと・浴室・洗面室が近いので、家事動線がラクラクです! ◆土地面積33坪 駐車スペースは1台です。 ◆2階に3部屋 主寝室は7.5帖!収納も広いです。 ◆北西向きの広いバルコニー 洗濯物がたくさん干せますよ。 ◆小学校までは距離があります。ご確認ください。 ◆全16棟の大型開発分譲住宅地!間取りが色々ありますのでぜひご覧ください。 ◆新河岸川が近く、田んぼや緑がまだ残る立地です。 |
Bk19479
|
朝霞市宮戸3丁目の新築一戸建て
|
4,780万円 朝霞市宮戸3丁目 |
4LDK 志木駅 |
− 22分 |
110.27m2 96.38m2 |
2 木造 |
R08/02
 令和08年02月上旬 |
|
朝霞市宮戸3丁目の新築一戸建て 16号棟(全16棟) 【当社なら仲介手数料が20%OFF!】 ◆16号棟は、北東・北西・南東の三方角地!陽当たり・風通り良好。 ◆1階LDKは16.2帖 4.5畳の和室とつなげると広い空間となります。 ◆土地面積33坪 駐車スペースは1台です。 ◆2階に3部屋 南東向きの広いルーフバルコニー 洗濯物がたくさん干せますよ。 ◆小学校までは距離があります。ご確認ください。 ◆全16棟の大型開発分譲住宅地!間取りが色々ありますのでぜひご覧ください。 ◆新河岸川が近く、田んぼや緑がまだ残る立地です。 |
Bk19548
|
朝霞市岡1丁目の新築一戸建て
|
4,780万円 朝霞市岡1丁目 |
2SLDK 朝霞駅 |
− 15分 |
107.3m2 109.35m2 |
3 木造 |
R08/03
 令和08年04月上旬 |
|
朝霞市岡1丁目の新築一戸建て 【当社なら仲介手数料が20%OFF!】 ◆3階建ての新築一戸建て 路地状敷地です。土地面積32坪。 ◆2階は19.5帖のLDK 人気のリビングイン階段で家族の様子がわかり安心です! ◆なんとウォークインクローゼットが3か所!収納豊富な間取りです。 ◆3階の10.5帖の洋室は4.5帖と6帖に分けられます。オプションで壁設置可能です。 ◆建築基準法上2SLDKと表記しておりますが3LDKとしてお使いいただけます。 |
Bk19114
|
朝霞市膝折町5丁目の新築一戸建て
|
4,799万円 朝霞市膝折町5丁目 |
3SLDK 朝霞駅 |
− 17分 |
97.16m2 96.77m2 |
2 木造 |
R07/11
 即時 |
|
朝霞市膝折町5丁目の新築一戸建て 5号棟(全5棟) 【当社なら仲介手数料が20%OFF!】 ◆5号棟は、土地面積29坪 2階にバルコニーが2か所あります。 ◆1階LDKは16帖!対面キッチン、リビング収納があります。 ◆キッチンと・浴室・洗面室が近いので、家事動線がラクラクです! ◆キッチンの横にサービスルーム 普通の部屋として使えます。 ◆人気のリビングイン階段で家族の様子がわかり安心です! ◆2階のホールにも収納あり。スッキリと片付きます。 ◆端にゴミ置き場が設置されます。 ◆建築基準法上3SLDKと表記しておりますが4LDKとしてお使いいただけます。 ◆閑静な住宅街に立地します。ぜひ一度ご覧ください。
 |
Bk19363
|
朝霞市根岸台7丁目の新築一戸建て
|
4,880万円 朝霞市根岸台7丁目 |
3SLDK 朝霞駅 |
− 14分 |
144.59m2 95.84m2 |
2 木造 |
R07/10
 即時 |
|
朝霞市根岸台7丁目の新築一戸建て 3号棟(全5棟) 【当社なら仲介手数料が20%OFF!】 ◆全5棟 2階建て新築一戸建てが出ました!間取りが色々ございますのでぜひ一度ご覧ください(_ _) ◆2・3・5号棟は路地状敷地です。そこが駐車スペース。2台縦列駐車です。自転車なども置けます。 ◆3号棟 2階への階段はキッチンを通り抜けたところ。家族の様子がわかり安心です。 ◆1階15帖のLDKと3帖のタタミコーナーあり。つなげて広く使用できます。 ◆タタミコーナーはお子様のお昼寝場所にもなりますね。 ◆2階に3部屋 ウォークインクローゼットが2か所ありますよ。 ◆全棟駐車スペース2台可能 希少な広い敷地(41坪超え)の一戸建てです。 ◆周辺はまだ畑の残る住宅街です。向原公園が至近。
 |
Bk19365
|
朝霞市根岸台7丁目の新築一戸建て
|
4,880万円 朝霞市根岸台7丁目 |
4LDK 朝霞駅 |
− 14分 |
143.58m2 96.05m2 |
2 木造 |
R07/10
 即時 |
|
朝霞市根岸台7丁目の新築一戸建て 5号棟(全5棟) 【当社なら仲介手数料が20%OFF!】 ◆全5棟 2階建て新築一戸建てが出ました!間取りが色々ございますのでぜひ一度ご覧ください(_ _) ◆2・3・5号棟は路地状敷地です。そこが駐車スペース。2台縦列駐車です。自転車なども置けます。 ◆5号棟 2階の主寝室が8.75帖もありますよ。ウォークインクローゼットあり。 ◆1階の3.1帖の洋室はテレワークルームにも使えそう。 ◆全棟駐車スペース2台可能 希少な広い敷地(41坪超え)の一戸建てです。 ◆周辺はまだ畑の残る住宅街です。向原公園が至近。
 |
Bk19113 |
朝霞市膝折町5丁目の新築一戸建て |
4,950万円 朝霞市膝折町5丁目 |
3SLDK 朝霞駅 |
− 17分 |
100.13m2 97.71m2 |
2 木造 |
R07/11
 即時 |
|
朝霞市膝折町5丁目の新築一戸建て 2号棟(全5棟) 【当社なら仲介手数料が20%OFF!】 ◆2号棟は、土地面積30坪 浴室洗面室が2階にある間取りです。 ◆1階LDKは18.25帖!対面キッチン、リビング収納があります。 ◆キッチンの横にサービスルーム 普通の部屋として使えます。 ◆人気のリビングイン階段で家族の様子がわかり安心です! ◆玄関には人気のシューズインクローゼットがあります!ゴルフバッグやベビーカーなどが置けて便利です。 ◆朝の身支度に便利!浴室・洗面室は2階にあります。 ◆建築基準法上3SLDKと表記しておりますが4LDKとしてお使いいただけます。 ◆閑静な住宅街に立地します。ぜひ一度ご覧ください。
 |
Bk19362
|
朝霞市根岸台7丁目の新築一戸建て
|
4,980万円 朝霞市根岸台7丁目 |
4LDK 朝霞駅 |
− 14分 |
144.47m2 95.43m2 |
2 木造 |
R07/10
 即時 |
|
朝霞市根岸台7丁目の新築一戸建て 2号棟(全5棟) 【当社なら仲介手数料が20%OFF!】 ◆全5棟 2階建て新築一戸建てが出ました!間取りが色々ございますのでぜひ一度ご覧ください(_ _) ◆2・3・5号棟は路地状敷地です。そこが駐車スペース。2台縦列駐車です。自転車なども置けます。 ◆1階15.5帖のLDKと3.7帖の和室があり、つなげて広く使用できます。 ◆和室はお子様のお昼寝場所にもなりますね。 ◆玄関には人気のシューズインクローゼットがあります!ゴルフバッグやベビーカーなどが置けて便利です。 ◆2階に3部屋 主寝室にはウォークインクローゼットが2か所ありますよ。 ◆全棟駐車スペース2台可能 希少な広い敷地(41坪超え)の一戸建てです。 ◆周辺はまだ畑の残る住宅街です。向原公園が至近。
 |
Bk19486
|
朝霞市宮戸3丁目の新築一戸建て
|
5,190万円 朝霞市宮戸3丁目 |
4LDK 朝霞台駅 |
− 20分 |
117.33m2 98.53m2 |
2 木造 |
R08/02
 令和08年02月中旬 |
|
朝霞市宮戸3丁目の新築一戸建て 【当社なら仲介手数料が20%OFF!】 ◆2階建ての新築一戸建て 駅からは少し離れますが、バス便もあります! ◆1階LDKは15.1帖 隣の5.25帖の洋室とつなげてお使いいただくこともできます。 ◆キッチンと・浴室・洗面室が近いので、家事動線がラクラクです! ◆玄関には人気のシューズインクローゼットがあります!ゴルフバッグやベビーカーなどが置けて便利です。 ◆2階に3部屋 主寝室にはウォークインクローゼット・フリーコーナーがありますよ。 ◆土地面積35坪超え!ゆとりの敷地です。 |
Bk19364
|
朝霞市根岸台7丁目の新築一戸建て
|
5,280万円 朝霞市根岸台7丁目 |
3LDK 朝霞駅 |
− 14分 |
138.85m2 86.94m2 |
2 木造 |
R08/01
 令和08年01月下旬 |
|
朝霞市根岸台7丁目の新築一戸建て 4号棟(全5棟) 【当社なら仲介手数料が20%OFF!】 ◆全5棟 2階建て新築一戸建てが出ました!間取りが色々ございますのでぜひ一度ご覧ください(_ _) ◆4号棟は、1階17.5帖のLDK 人気のリビングイン階段で家族の様子がわかり安心です! ◆キッチンと洗面室が近いので家事が楽々進みます。 ◆2階に3部屋 4号棟はウォークインクローゼットはありません。 ◆4号棟と5号棟の間にゴミ置き場が設置されます。 ◆全棟駐車スペース2台可能 希少な広い敷地(41坪超え)の一戸建てです。 ◆周辺はまだ畑の残る住宅街です。向原公園が至近。 |
Bk19361
|
朝霞市根岸台7丁目の新築一戸建て
|
5,380万円 朝霞市根岸台7丁目 |
3LDK 朝霞駅 |
− 14分 |
137.16m2 91.49m2 |
2 木造 |
R08/01
 令和08年01月下旬 |
|
朝霞市根岸台7丁目の新築一戸建て 1号棟(全5棟) 【当社なら仲介手数料が20%OFF!】 ◆全5棟 2階建て新築一戸建てが出ました!間取りが色々ございますのでぜひ一度ご覧ください(_ _) ◆1号棟は、1階16.7帖のLDKと2階8.2帖の寝室が広々として魅力的です。 ◆玄関を入るとすぐに洗面室があり、帰宅後すぐに手洗いうがいができます♪ ◆広いリビング収納あり。スッキリと片付きます。 ◆2階に3部屋 主寝室にはウォークインクローゼットがありますよ。 ◆全棟駐車スペース2台可能 希少な広い敷地(41坪超え)の一戸建てです。 ◆周辺はまだ畑の残る住宅街です。向原公園が至近。 |