Bm19752
|
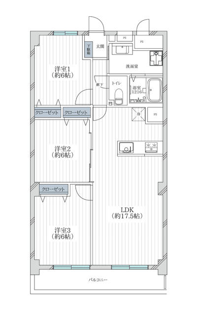
志木南パークホームズ
|
2,990万円 朝霞市三原2丁目 |
3LDK 志木駅 |
− 8分 |
56.12m2 |
6/11 鉄筋コンクリート造 |
H07/01 令和08年05月下旬 |
|
志木南パークホームズ 朝霞市三原2丁目の中古マンション ◆11階建ての6階部分 西向きバルコニー 午後の日差しが入ります。 ◆リフォーム中なので完了後キレイな状態でお住まいいただけます。(2026年5月下旬完了予定) ◆キッチンは独立しています。スッキリとした印象です。 ◆修繕積立金改定予定あり。2026年4月より16220円/月になります。 ◆天候によっては富士山が望めます。 ◆三井不動産旧分譲マンション! ◆敷地内に全戸分の駐車スペースあります。 ◆JR武蔵野線「北朝霞」駅徒歩10分も利用可能です。 【当社なら仲介手数料が20%OFF!】 |
Bm19734 |
アルブル朝霞 |
3,080万円 朝霞市栄町1丁目 |
3LDK 朝霞駅 |
− 7分 |
62.82m2 |
3/6 鉄筋コンクリート造 |
H09/02 即時 |

|
アルブル朝霞 朝霞市栄町1丁目の中古マンション ◆6階建ての3階部分 南向きの住戸です。 ◆リビングダイニングがバルコニーに面し、一日中明るく過ごせます。 ◆リフォーム履歴があります。(2021年8月) ◆現地は閑静な住宅街です。公園も近くにありますよ。 ◆東側に高圧電線の鉄塔がございます。ご確認ください。 【当社なら仲介手数料が20%OFF!】 |
Bm19604 |
朝霞台ハウス |
3,180万円 朝霞市三原3丁目 |
3LDK 朝霞台駅 |
− 8分 |
66m2 |
1/6 鉄筋コンクリート造 |
S57/11 即時 |
|
朝霞台ハウス 朝霞市三原3丁目の中古マンション ◆1階部分 東向きバルコニー 朝の日差しが入ります。 ◆リフォーム中なので完了後キレイな状態でお住まいいただけます。(2026年2月完了予定) ◆キッチンは独立しています。お料理がはかどりそうです。 ◆3LDKの間取り 真ん中のお部屋には窓がありません。ご留意ください。 ◆昭和57年11月築、長谷工設計・施工・管理のマンションです。 ◆お子様に嬉しい!マンションの前は公園です。 ◆便利!3駅(朝霞駅・朝霞台駅・JR北朝霞駅)利用できる立地です。 【当社なら仲介手数料が20%OFF!】 |
Bm19729
|
ワールドマンション東武練馬
|
3,180万円 板橋区徳丸1丁目 |
3LDK 東武練馬駅 |
− 7分 |
58m2 |
5/6 鉄筋コンクリート造 |
S56/06 即時 |
|
ワールドマンション東武練馬 板橋区徳丸1丁目の中古マンション ◆6階建ての5階部分 西・北の角部屋!バルコニーは西向きです。 ◆新規内装リノベーション中なので完了後キレイな状態でお住まいいただけます。 ◆新品家具雑貨付きです。 ◆マンションは幅員21.9mの広い道路に面しています。 ◆マンションの1階には店舗が入っています。 ◆駅から徒歩7分の好立地!エントランスは階段があります。 【当社なら仲介手数料が20%OFF!】 |
Bm19741
|
朝霞ハイデンス
|
3,280万円 朝霞市根岸台6丁目 |
3LDK 朝霞駅 |
− 5分 |
72.47m2 |
5/7 鉄筋コンクリート造 |
S49/07 即時 |
|
朝霞ハイデンス 朝霞市根岸台6丁目の中古マンション ◆7階建ての5階部分 東向きバルコニーです。 ◆リフォーム済みなのですぐにキレイな状態でお住まいいただけます。 ◆リビングと洋室3がバルコニーに面します。朝の日差しが入ります。 ◆洋室2には窓がありません。ご留意ください。 ◆大規模修繕実施済みです。(2018年3月) ◆2023年耐震改修工事実施済です。 ◆お子様に嬉しい!マンションの隣りに小公園があります。 ◆駅徒歩5分の好立地!朝霞駅は急行が停まるようになりました。 【当社なら仲介手数料が20%OFF!】 |
Bm19619
|
マンション東武練馬
|
3,298万円 板橋区徳丸3丁目 |
2LDK 東武練馬駅 |
− 10分 |
55.86m2 |
5/8 鉄骨鉄筋コンクリート造 |
S55/07 即時 |
|
マンション東武練馬 板橋区徳丸3丁目の中古マンション ◆8階建ての5階部分 北西・北東の角部屋 バルコニーとルーフバルコニーがある住戸です。 ◆新規リノベーリョン中の物件 完了後すぐにきれいな状態でお住まいいただけます。 ◆2LDKの間取り 角部屋なので明るく開放感が感じられるお部屋です。 ◆バルコニー面積はルーフバルコニーも含んだ面積です。 ◆住環境良好!お子様に安心、小学校が近いです。 ◆昭和55年6月築のマンションです。 【当社なら仲介手数料が20%OFF!】 |
Bm19274
|
朝霞ハイデンス
|
3,480万円 朝霞市根岸台6丁目 |
3LDK 朝霞駅 |
− 5分 |
72.47m2 |
5/7 鉄筋コンクリート造 |
S49/07 即時 |
|
朝霞ハイデンス 朝霞市根岸台6丁目の中古マンション ◆7階建ての5階部分 南東・北東の角部屋 バルコニーが2か所あります。 ◆リフォーム中なので完了後キレイな状態でお住まいいただけます。(2025年10月中旬完了予定) ◆ウォークインクローゼットがあります。たくさん収納できますね。 ◆大規模修繕実施済み(2018年3月)。耐震改修工事実施済み(2024年3月)。 ◆マンションの隣りに小公園があります。 ◆駅徒歩5分の好立地。 【当社なら仲介手数料が20%OFF!】 |
Bm19688
|
志木南パークホームズ
|
3,480万円 朝霞市三原2丁目 |
3LDK 志木駅 |
− 8分 |
60.79m2 |
4/11 鉄筋コンクリート造 |
H07/01 即時 |
|
志木南パークホームズ 朝霞市三原2丁目の中古マンション ◆11階建ての4階部分 西・北の角部屋 午後の日差しが入ります。 ◆新規内装リノベーション済みなのですぐにキレイな状態でお住まいいただけます。(2026年1月末完了) ◆キッチンは独立しています。スッキリとした印象です。 ◆全居室に窓があり開放感がある室内です。 ◆三井不動産旧分譲マンション! ◆敷地内に全戸分の駐車スペースがあります。 ◆JR武蔵野線「北朝霞」駅徒歩10分も利用可能です。 【当社なら仲介手数料が20%OFF!】 |
Bm19733
|
シティ光陽朝霞
|
 3,480万円 朝霞市栄町1丁目 |
2LDK 朝霞駅 |
− 8分 |
62.1m2 |
4/8 鉄筋コンクリート造 |
S61/10 即時 |
|
シティ光陽朝霞 朝霞市栄町1丁目の中古マンション ◆8階建ての4階部分 南向きのバルコニー おしゃれに生まれ変わりました! ◆新規内装リノベーション中なので完了後キレイな状態でお住まいいただけます。(2026年2月末完了予定) ◆2.3帖のウォークインクローゼット!収納充実しています。 ◆お子様にうれしい!敷地内の公園があります。 ◆小中学校も近いので、お子様に安心ですね。 【当社なら仲介手数料が20%OFF!】 |
Bm19786
|
志木南パークホームズ
|
3,480万円 朝霞市三原2丁目 |
3LDK 志木駅 |
− 8分 |
60.79m2 |
3/11 鉄筋コンクリート造 |
H07/01 即時 |
|
志木南パークホームズ 朝霞市三原2丁目の中古マンション ◆11階建ての3階部分 西・北の角部屋 陽当たり・風通りの良いお部屋です。 ◆リフォーム済みなのですぐにキレイな状態でお住まいいただけます。(2026年2月完了) ◆キッチンは独立しています。スッキリとした印象です。 ◆バルコニーが2か所あるので全居室バルコニーに面します。素敵な住戸です。 ◆三井不動産旧分譲マンション! ◆敷地内に全戸分の駐車スペースがあります。 ◆JR武蔵野線「北朝霞」駅徒歩10分も利用可能です。 【当社なら仲介手数料が20%OFF!】 |
Bm19678 |
キャニオンビュー光が丘 |
3,490万円 板橋区赤塚新町3丁目 |
2LDK 地下鉄赤塚駅 |
− 5分 |
53.46m2 |
4/9 鉄骨鉄筋コンクリート造 |
S57/11 即時 |
|
キャニオンビュー光が丘 板橋区赤塚新町3丁目の中古マンション ◆9階建ての4階部分 南・西の角部屋!日当たり・通風・眺望良好です。 ◆2LDKの間取り LDKは13帖あるのでゆったり過ごせそうです。 ◆角部屋なので、出窓が3か所。お部屋が広く感じられます。 ◆バルコニーから公園を望む開放感のある住戸! ◆川越街道沿い立地します。現地にてご確認ください。 ◆2駅3路線(有楽町線・副都心線・東武東上線)利用可能で便利です! 【当社なら仲介手数料が20%OFF!】 |
Bm19727 |
アドリーム高島平 |
3,490万円 板橋区高島平1丁目 |
2LDK 高島平駅 |
− 10分 |
50.76m2 |
4/7 鉄筋コンクリート造 |
H06/12 即時 |
|
アドリーム高島平 板橋区高島平1丁目の中古マンション ◆7階建ての4階部分 南・東の角部屋!日当たり・通風・眺望良好です。 ◆リフォーム中なので完了後キレイな状態でお住まいいただけます。(2026年2月下旬完了予定) ◆角部屋なのでバルコニーが2ヶ所 一日中明るく過ごせます。 ◆修繕積立金は2027年1月から16830円に増額検討中です。 ◆スーパーやコンビニが徒歩5分圏内!生活しやすい環境です。 ◆首都高が近い立地です。現地にてご確認ください。 【当社なら仲介手数料が20%OFF!】 |
Bm19779
|
ライオンズマンション朝霞本町
|
3,499万円 朝霞市本町1丁目 |
2LDK 朝霞駅 |
− 10分 |
59.52m2 |
4/7 鉄筋コンクリート造 |
H06/09 令和08年04月中旬 |
|
ライオンズマンション朝霞本町 朝霞市本町1丁目の中古マンション ◆7階建ての4階部分 西向き リビングダイニング一面にバルコニーが広がります。 ◆リノベーション中なので完了後キレイな状態でお住まいいただけます。(2026年4月中旬完了予定) ◆2LDKの間取り。LDKは16帖、主寝室は5.6帖です。 ◆リビング収納あり。スッキリと片付けることができますね。 ◆最寄りの朝霞駅まで平坦な道のりです。小学校が近く、静かな環境です。 【当社なら仲介手数料が20%OFF!】 |
Bm19666
|
イニシア朝霞
|
3,680万円 朝霞市仲町2丁目 |
2LDK 朝霞駅 |
− 7分 |
56.77m2 |
4/12 鉄筋コンクリート造 |
H20/02 相談 |
|
イニシア朝霞 朝霞市仲町2丁目の中古マンション ◆12階建ての4階部分 南西向きバルコニー日当たり・通風・眺望良好です。 ◆LDKは11.8帖です。隣の洋室と繋げてお使いいただけます。 ◆2LDKの間取り 明るい室内です。 ◆朝霞駅徒歩7分の立地!生活施設も近隣に揃っています。 ◆鉄塔が近くにあるので現地にてご確認ください。 ◆和光市駅徒歩12分も利用可能です。 【当社なら仲介手数料が20%OFF!】 |
Bm19591
|
志木ファイブハイツ
|
 3,690万円 志木市本町5丁目 |
3LDK 志木駅 |
− 3分 |
72.11m2 |
2/14 鉄骨鉄筋コンクリート造 |
S49/12 令和08年03月中旬 |
|
志木ファイブハイツ 志木市本町5丁目の中古マンション ◆1階部分 南東向きのバルコニー。リビングと洋室がバルコニーに面します。 ◆リフォーム中なので完了後キレイな状態でお住まいいただけます。(2026年3月中旬完了予定) ◆対面式キッチンなので、家族の様子を見ながらお料理できます。 ◆昭和49年築のマンションですが、管理体制良好です。 ◆全338戸の大型マンション! ◆駅徒歩3分!目の前は慶応義塾志木高校の緑が広がります。 ◆生活環境良好!スーパーカスミが近くにあります。入居者のみの専用扉あり。 【当社なら仲介手数料が20%OFF!】 |
Bm19728
|
グランシェ志木
|
3,780万円 志木市本町5丁目 |
3DK 志木駅 |
− 4分 |
55.1m2 |
6/9 鉄骨鉄筋コンクリート造 |
H05/05 即時 |
|
グランシェ志木 志木市本町5丁目の中古マンション ◆6階部分 北東・北西の角部屋 メインバルコニーは北西側。 ◆リフォーム済みなのですぐにキレイな状態でお住まいいただけます。 ◆バルコニーは2か所 全居室バルコニーに面します。 ◆3DKの間取りです。1部屋は和室です。 ◆ダイニングキッチンが真ん中にある間取りです。家族が集まりやすいですね。 ◆駅徒歩4分の好立地です! 【当社なら仲介手数料が20%OFF!】 |
Bm19324
|
ライオンズマンション西高島平溝下公園壱番館
|
3,790万円 板橋区三園1丁目 |
3LDK 西高島平駅 |
− 6分 |
60.76m2 |
2/5(B1) 鉄筋コンクリート造 |
H10/07 即時 |
|
ライオンズマンション西高島平溝下公園 壱番館 板橋区三園1丁目の中古マンション ◆5階建ての2階部分 南東向きバルコニー 陽当り良好。 ◆リフォーム中なので完了後キレイな状態でお住まいいただけます。(2025年12月上旬完了予定) ◆主寝室にはウォークインクローゼットあり たっぷり収納できます。 ◆マンション名の通り溝下公園が近いです! ◆駅が近い!「西高島平」駅まで徒歩6分が魅力ですね。 【当社なら仲介手数料が20%OFF!】 |
Bm18799
|
コスモ志木
|
 3,980万円 志木市幸町1丁目 |
3LDK 志木駅 |
− 9分 |
74.59m2 |
4/13 鉄骨鉄筋コンクリート造 |
S61/07 即時 |
|
コスモ志木 志木市幸町の中古マンション ◆13階建ての4階部分 南西向き 日当たり・通風・眺望良好です。 ◆リフォーム済みなのですぐにキレイな状態でお住まいいただけます。 ◆アフターサービス付きなので安心です。 ◆LDKが真ん中にある間取りです。家族が集いやすいですね。 ◆LDKは16.4帖!LDK字型のキッチンが使いやすそう。 ◆リビングと洋室Aはつなげてお使いいただけます。 ◆管理体制良好!総戸数248戸のビッグコミュニティ! 【当社なら仲介手数料が20%OFF!】 |
Bm19449
|
クリオ朝霞壱番館
|
3,980万円 朝霞市本町1丁目 |
3LDK 朝霞駅 |
− 10分 |
62.99m2 |
2/8 鉄筋コンクリート造 |
H07/03 即時 |
|
クリオ朝霞壱番館 朝霞市本町1丁目の中古マンション ◆2階部分 南東向き リビングと洋室がバルコニーに面します。 ◆リフォーム中なので完了後キレイな状態でお住まいいただけます。(2026年2月完了予定) ◆対面式のキッチンなので、リビングダイニングを見ながらお料理できますね。 ◆1995年3月築のマンションです。 ◆スーパーなど生活施設が近い!(マルエツ朝霞店は目の前!) 【当社なら仲介手数料が20%OFF!】 |
Bm19724
|
シーアイハイツ和光T棟
|
3,980万円 和光市本町 |
2LDK 和光市駅 |
− 9分 |
62.07m2 |
8/14 鉄骨鉄筋コンクリート造 |
S59/02 令和08年07月下旬 |
|
シーアイハイツ和光T棟 和光市本町の中古マンション ◆14階建ての8階部分 南西・北東の2面バルコニー 日当たり・通風・眺望良好です。 ◆2LDKの間取り LDKは13.3帖です。対面キッチンなので家族が集いやすいです。 ◆リフォーム中なので完了後キレイな状態でお住まいいただけます。(2026年7月下旬完了予定) ◆ウォークインクローゼットやシューズインクローゼットあり。たくさん収納できますね。 ◆全体総戸数1,616戸のビッグコミュニティ!敷地内にはスーパー・図書館・公園・100円ショップも揃っています。 【当社なら仲介手数料が20%OFF!】 |